Компания Vencon осуществляет проектирование систем кондиционирования в Киеве «Под Ключ». Проект разрабатывается нашими сотрудниками. При его создании учитываются все особенности помещения, а также ваши личные пожелания.
Проект разрабатывается в течение 3-15 дней. Точный срок его создания зависит от конфигурации и характеристик выбранной сплит-системы, а также особенностей вашего объекта. При необходимости вы можете купить у нас кондиционер, а затем заказать реализацию разработанного проекта.
У нас есть лицензия
Соблюдаем все правила и нормы проектирования
Консультация проектировщика
Подробно разъясняем все рабочие моменты
Экспертность
Разрабатываем проекты любой сложности
Под Ключ
Полная разработка проекта во время его реализации у нас
100% гарантия
Гарантия на кондиционер при реализации нашего проекта
Удобная оплата
Принимаем оплату различными способами, также есть рассрочка
Проектируем системы кондиционирования для помещений различной сложности
Стоимость проектирования кондиционирования
Мы предлагаем 3 услуги по данному проектированию, какую выбрать и в чем их различия смотрите ниже
| Вид расчета | Стоимость услуги | Если проект реализован с нами |
|---|---|---|
| 1. Система кондиционирования: инженерное решение | 200 грн/м²* | 100 грн/м²** |
| Система кондиционирования: инженерное решение — план-схема расположения оборудования кондиционирования и воздуховодов, а также спецификация материалов. Данного перечня достаточно для понимания строения системы кондиционирования и для реализации монтажа по плану-схеме. *Минимальная стоимость такой услуги составляет 5 тыс. грн - Подходит в случае заказа для квартир, а также частных домов. ** В случае приобретения у нас оборудования, материалов и работ. Данная услуга предназначена для бытовых и коммерческих решений на базе сплит или мультисплит систем с разводкой воздуховодов. | ||
| Вид расчета | Стоимость услуги | Если проект реализован с нами |
|---|---|---|
| 2. Система кондиционирования: эскиз системы кондиционирования | 2500 грн | 2500 грн |
| Система кондиционирования: эскиз системы кондиционирования — плоская план-схема в одну линию произвольного расположения оборудования кондиционирования, трассировка коммуникаций, а также спецификация материалов. Данного перечня достаточно для понимания размещения внутренних и внешних блоков кондиционеров и приблизительной трассировки фреоновых магистралей и дренажей. Данная услуга предназначена для бытовых и коммерческих решений на базе сплит- или мультисплит-систем без разводки воздуховодов. | ||
| Вид расчета | Стоимость услуги | Если проект реализован с нами |
|---|---|---|
| 3. Проект системы кондиционирования | 350 грн/м² | 350 грн/м² |
| Система кондиционирования: проект — проектная документация, заполненная с соблюдением стандартных норм, с проставлением подписей и печатей. - Подходит в случае заказа для такого типа объекта, где это строго регламентируется, например, магазин, учебное заведение, промышленное сооружение, медицинское учреждение и т. д. | ||
Порядок наших работ
Связываемся с вами, чтобы обсудить задачи, которые будет выполнять система кондиционирования, и имеющиеся ограничения.
С учетом пожеланий и требований заказчика совместно формируем техническое задание (ТЗ).
Получаем от вас оплату полной стоимости работ перед разработкой.
Если вы предоставили всю необходимую информацию – работаем над проектом от трех дней до трех недель.
После проведения просчета и согласования у вас есть возможность внести не более 2 корректировок согласованного ТЗ.
Вы получаете от нас готовую план-схему с дополнительными чертежами и коммерческое предложение. Согласовываете его и ставите подпись на акте приема-передачи.
1. Инженерное решение системы кондиционирования
Перечень работ инженера
выполняется от трех дней до трех недель
- Проведение консультации для создания и заполнения ТЗ (технического задания).
- Подготовка трассировки с расчетными затратами в одну линию с предварительным расположением приборов и оборудования, ее согласование.
- Выбор основной техники в соответствии с ТЗ заказчика под расчетные параметры.
- Разработка план-схемы в объеме, внесение корректировок.
- Подготовка чертежей для согласования со смежными работами (задачи по электрике, расположение и размеры люков обслуживания, опуски под инженерные сети) и другие при необходимости.
- Составление спецификации с перечнем оборудования и материалов, которые были использованы.
Вам будут предоставлены
список листов может быть другим
- План-схема расположения оборудования кондиционирования с воздуховодами, а также их диаметрами. Этого достаточно для понимания строения системы кондиционирования и для реализации монтажа по плану-схеме. - Стоимость включает после проведения просчета и согласования внесение не более 2 корректировок согласованного ТЗ. Все корректировки, начиная с третьей, должны быть оплачены дополнительно.
- Коммерческое предложение с подробным расчетом материалов и техники.
- Дополнительные чертежи для согласования со смежными работами при необходимости.
3 примера инженерного решения системы кондиционирования
2. Эскиз системы кондиционирования
Перечень работ инженера
выполняется от одного дня до одной недели
- Проведение консультации для выбора корректного решения.
- Подготовка схемы с предварительным расположением основного и вспомогательного оборудования и их коммуникациями в одну линию, ее согласование.
- Выбор основной техники в соответствии с пожеланиями заказчика под расчетные параметры.
- Подготовка информации и внесение на чертеж для согласования со смежными работами (задание по электрике) и другие при необходимости.
- Составление спецификации с перечнем оборудования и материалов, которые были использованы.
Вам будут предоставлены
список листов может быть другим
- План-схема расположения основного и вспомогательного оборудования кондиционирования и их коммуникаций в одну линию. Этого достаточно для понимания строения системы кондиционирования и для реализации монтажа по плану-схеме.
- Стоимость включает после проведения расчета и согласования внесение не более 1 корректировки согласованного варианта. Все корректировки, начиная со второй, должны быть оплачены дополнительно. - Коммерческое предложение с подробным расчетом материалов и техники.
3 примера эскиза системы кондиционирования
3. Проект системы кондиционирования
Список работ проектировщика
выполняется от 3 до 15 рабочих дней
- Консультация для составления технического задания.
- Изучение особенностей помещения на объекте, рекомендации по кондиционированию.
- Выбор оборудования по техзаданию.
- Создание папки, содержащей полный перечень листов по проекту сплит-системы.
- Разработка спецификации с перечислением применяемых расходных материалов.
Вам будут предоставлены
список листов может быть другим
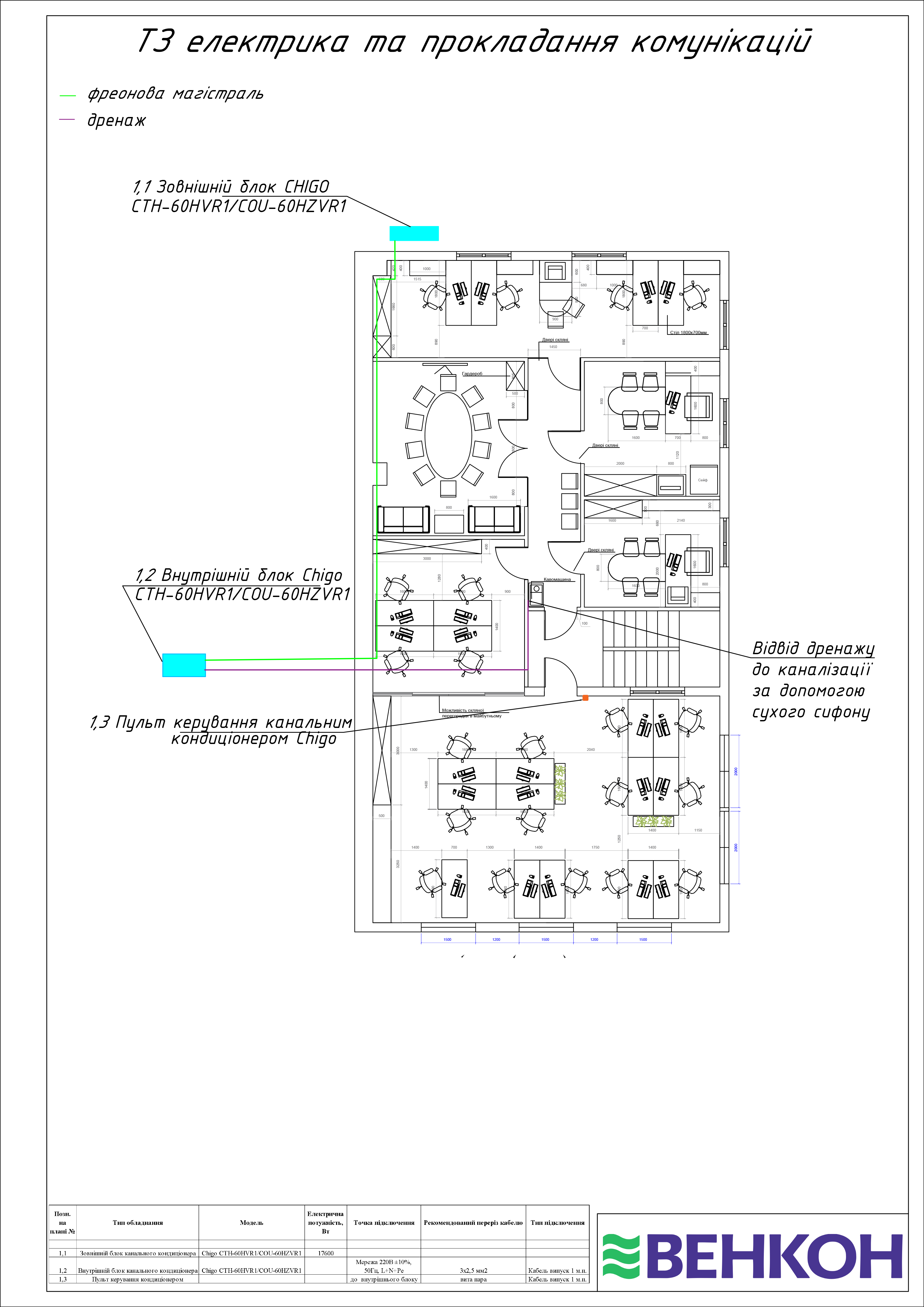
1. Папка с полным перечнем листов по проекту, с проставленными подписями и печатями:
- лист с общей информацией;
- лист с планом сплит-системы на этаже, где выполняется проект;
- лист с подробными данными о узлах в сплит-системе;
- листы с тех. заданием для электрообеспечения устройства;
- рекомендации по подготовке мест для отверстий;
- спецификация по устройству и расходным материалам;
- технические параметры техники.
В цену входит до 2 корректировок тех. задания. Каждая новая корректировка оплачивается отдельно.
2. Коммерческое предложение, в котором рассчитана стоимость оборудования и расходных материалов. Цена включает две версии расчетов с применением различных брендов.

































